ADU Floor Plan

Solstice

Build estimates starting at $150,000
499 SQFT
Full Kitchen
Full Bath
1 Bed / 1 Bath

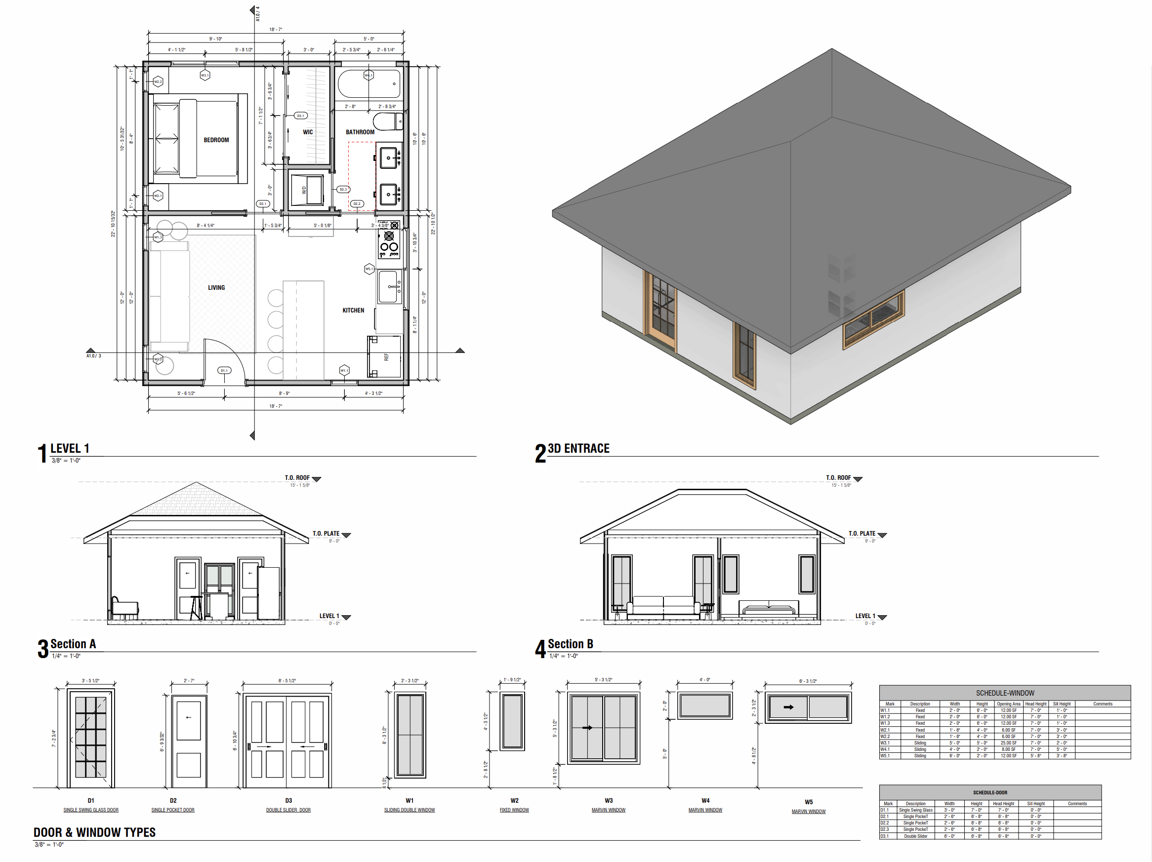
The Solstice is a 499 sq ft ADU with 1 bedroom, 1 bathroom, walk-in closet, and an open-concept kitchen and living area. Features a hip roof design, washer/dryer hookup, and a nearly square footprint that fits easily on most lots.

Get This Floor Plan

Schedule a free consultation to discuss this plan and get a custom quote for your property.

Title 24 Compliant
Permit-Ready
Fast Approval
Plan Details & Specifications

Plan Details

The Solstice is a well-proportioned 499 sq ft ADU with 1 bedroom, 1 full bathroom, a walk-in closet, and an open-concept kitchen and living area. The nearly square footprint (18'-7" × 22'-10½") makes it easy to site on most lots. The bedroom and bathroom are tucked into the upper half for privacy, while the living and kitchen areas occupy the lower half with a generous open layout. A hip roof design gives the Solstice a clean, modern profile.

Key Features

  • Bedroom (9'-10" × 10'-5"): A full-sized bedroom with space for a queen bed, nightstands, and multiple windows for natural light and cross-ventilation.
  • Walk-In Closet (W.I.C.): Dedicated walk-in closet between the bedroom and bathroom, with washer/dryer hookup conveniently located adjacent.
  • Full Bathroom (5' × 10'-6"): Complete bathroom with full bathtub, toilet, and vanity. Cleanly separated from the living area for privacy.
  • Open Living Area (12' × ~15'): Spacious living room with room for a sofa and entertainment area. Large windows on multiple walls create a bright, airy feel.
  • Full Kitchen (~8' × 12'): L-shaped kitchen with full-size refrigerator, cooktop with range hood, and ample counter space. Open to the living area for a connected layout.

Specifications

  • Total Living Area: 499 sq ft
  • Footprint: ~18'-7" × 22'-10½"
  • Bedrooms: 1
  • Bathrooms: 1
  • Roof Type: Hip roof
  • Washer/Dryer: Hookup included

Why Choose the Solstice?

The Solstice is designed for homeowners who want a compact yet comfortable ADU with a modern aesthetic. The hip roof creates a clean, low-profile look that blends well with most home styles. At 499 sq ft, it's an ideal size for a rental unit, guest house, or multigenerational living — large enough to feel like a real home but small enough to keep construction costs manageable. The nearly square footprint fits easily on standard California lots with minimal setback challenges.

Customization and Modifications

The Solstice plan can be customized to suit your property. Options include mirroring the layout, adjusting window placements, modifying the kitchen configuration, or changing the roof style. Full architectural plans include door and window schedules, building sections, and 3D entrance views. Our design team will tailor the plan to your lot and local codes.

What's Included

  • General Notes and Perspectives: Comprehensive information and visual representations of the design.
  • Fully Dimensioned Floor Plans: Detailed plans with exact measurements.
  • Foundation and Roof Plan: Specific plans for the foundation and roofing structure.
  • Elevations and Sections: Exterior views and cross-sectional details from multiple angles.
  • Building and Wall Sections: Cross-sectional views detailing construction aspects.
  • Door and Window Schedules: Full specifications for all doors and windows.
  • 3D Entrance View: Rendered perspective of the entry and exterior.
  • Customization available

Ready to Build Your Solstice?

Schedule a free consultation to discuss this floor plan, get a custom quote, and learn how we can bring your ADU vision to life.

Email: argi@gatheradu.com

19849 Nordhoff St, Los Angeles, CA 91324