Garage Conversion JADU

330 sq ft Attached Garage Conversion JADU in Los Angeles

Los Angeles, CA, California

Project Type Garage Conversion JADU
Location Los Angeles, CA
Status Completed

Project Overview

This compact 330 sq ft attached garage conversion in Los Angeles transforms an underused garage into a fully functional Junior ADU (JADU). Sharing a wall with the main house, the unit features a spacious studio-style bedroom, a separate kitchen with washer/dryer hookup, and a full bathroom with skylights for natural light. The efficient layout maximizes every square foot while maintaining comfortable living spaces.

Project Details

Project Overview

This 330 sq ft attached garage conversion in Los Angeles demonstrates how a small, underused garage can be transformed into a comfortable Junior ADU (JADU). Sharing a wall with the main house, this unit qualifies as a JADU under California law, making the permitting process more streamlined.

Layout & Design

The floor plan measures approximately 18'6" x 13'4" and includes three distinct zones:

  • Studio Bedroom: A spacious bedroom area with room for a queen bed, built-in storage, and large windows for natural light and ventilation.
  • Separate Kitchen: A galley-style kitchen with full-size appliances, double sink, and a washer/dryer closet. A 2'x4' skylight above floods the space with daylight.
  • Full Bathroom: Features a shower, toilet, and vanity with a 2'x2' skylight above for ventilation and natural light.

Key Features

  • 330 sq ft total living space
  • Attached to main house (shared wall)
  • Studio bedroom with ample natural light
  • Separate kitchen with full appliances
  • Full bathroom with skylight
  • In-unit washer/dryer hookup
  • Multiple skylights throughout
  • 1-hour fire-rated wall and STC 50 sound-rated separation from main house
  • R-38 ceiling/attic insulation and R-13 batt insulation at exterior walls per T24

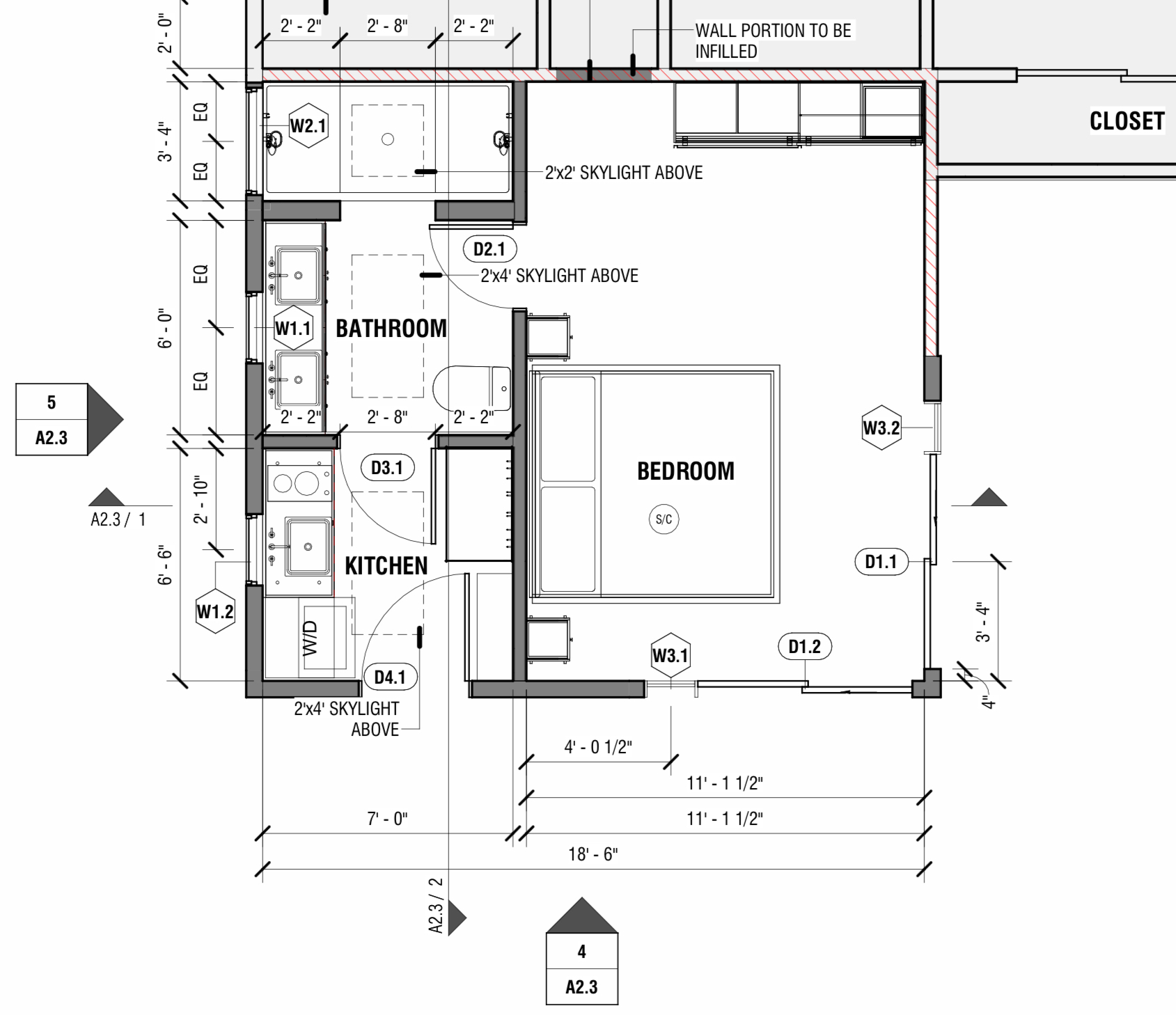
Floor Plan

Floor plan of 330 sq ft attached garage conversion JADU showing bedroom, kitchen, and bathroom layout
Detailed floor plan showing the efficient layout with bedroom, kitchen, and bathroom

3D Interior View

3D isometric view of 330 sq ft JADU interior showing bedroom, kitchen, and bathroom arrangement
3D isometric view showing the interior layout and spatial relationships

Sections & Elevations

Architectural sections and elevations of the Los Angeles garage conversion JADU
Cross sections and exterior elevations showing building construction details

Building Specifications

  • Size: 330 sq ft
  • Type: Attached Garage Conversion (JADU)
  • Bedrooms: Studio (1 open bedroom)
  • Bathrooms: 1 full bath
  • Kitchen: Separate galley kitchen
  • Location: Los Angeles, CA
  • Fire Separation: 1-hr fire-rated wall, STC 50 sound rating
  • Insulation: R-38 ceiling, R-13 exterior walls (per T24 report)

Our Approach

Discovery & Planning

We analyzed the property, zoning regulations, and homeowner goals to create a customized feasibility plan.

Design

Our designers created custom floor plans maximizing space while respecting the budget and aesthetic preferences.

Permitting

We navigated city requirements and handled all paperwork, securing permits efficiently.

Construction

Our licensed contractors brought the ADU to life with premium materials and meticulous attention to detail.

Understanding Garage Conversion JADUs

An accessory dwelling unit that provides independent living quarters with kitchen, bathroom, and sleeping facilities. This project in Los Angeles exemplifies the benefits and possibilities of this ADU type, demonstrating how homeowners can maximize their property's potential while creating valuable living space.

Typical Size
400-1,000 sq ft
Cost Range
$120,000-$300,000
Timeline
4-10 months

Key Benefits

Additional rental income
Increased property value
Housing for family members
Flexible use options
Tax advantages available

Ideal For

Rental income Multi-generational living Home office space Guest accommodations

Los Angeles ADU Market Insights

Los Angeles is located in Southern California and represents one of the most dynamic ADU markets in the area. With a population of 3.9 million and median home prices of $950,000, the demand for accessory dwelling units continues to grow as homeowners seek to maximize their property value and generate additional income.

Market Metric Value
Population 3.9 million
Median Home Price $950,000
Average 1-Bed Rent $2,400/month
Average 2-Bed Rent $3,100/month
Permit Timeline 8-16 weeks
ADU Demand Level Very High
Estimated Rental Yield 4.2%

Why Build an ADU in Los Angeles?

Largest ADU market in California
SB 1211 allows up to 8 ADUs on multifamily lots
No parking requirements within 1/2 mile of transit
Pre-approved ADU plans available

ADU Investment Potential in Los Angeles

Building an ADU in Los Angeles represents a significant investment opportunity. Based on current market conditions and rental rates in the Southern California area, homeowners can expect strong returns on their ADU investment. The combination of high rental demand, favorable regulations, and property value appreciation makes this an attractive option for long-term wealth building.

Monthly Income
$2,400
Average 1-Bed
Rental Yield
4.2%
Annual Return
Property Value
+15-25%
Average Increase

Investment Note: ADUs in Los Angeles typically pay for themselves within 8-12 years through rental income alone, while also providing immediate property value appreciation. Many homeowners also benefit from tax advantages and depreciation deductions.

Typical ADU Building Timeline in Los Angeles

Understanding the ADU construction timeline helps homeowners plan effectively. Here's what to expect when building a garage conversion jadu in the Southern California area.

Feasibility & Design

2-4 Weeks

Site analysis, zoning verification, initial design concepts, and cost estimation. We assess your property's ADU potential and create preliminary plans.

Architectural Plans

3-6 Weeks

Detailed architectural drawings, structural engineering, Title 24 energy compliance, and complete permit-ready documentation.

Permitting

8-16 weeks

Permit application submission, plan check review, and approval process. Los Angeles offers streamlined ministerial review for qualifying ADU projects.

Construction

4-10 months

Foundation, framing, MEP rough-in, insulation, drywall, finishes, and final inspections. Our licensed contractors manage every phase with quality craftsmanship.

Final Inspection & Move-In

1-2 Weeks

Certificate of occupancy, utility connections, final walkthrough, and handover. Your ADU is now ready for occupancy or rental.

Ready to Start Your ADU Project in Los Angeles?

Get expert guidance on designing and building your own accessory dwelling unit. Our team specializes in Southern California ADU projects.

ADU Regulations in Los Angeles

Understanding local ADU regulations is crucial for a successful project. Los Angeles follows California state ADU laws while implementing local standards. Here are the key regulations that applied to this project and similar builds in the area.

Size Limits

  • Detached ADU: Up to 1,200 sq ft
  • Attached ADU: 50% of primary home
  • JADU: Up to 500 sq ft
  • No minimum size requirement

Setbacks

  • Rear setback: 4 feet minimum
  • Side setback: 4 feet minimum
  • No front setback for JADUs
  • Conversions: Existing setbacks apply

Height Limits

  • Detached: 16-18 feet typical
  • 2-story ADUs: Up to 25 feet
  • Must not exceed primary dwelling
  • Local variations may apply

Parking

  • No parking within 1/2 mile of transit
  • Garage conversions: No replacement
  • JADUs: No parking required
  • Tandem parking allowed

Pro Tip: California's ADU laws are updated regularly. Our team stays current on all local and state regulations in Los Angeles to ensure your project meets current requirements and takes advantage of all available streamlining provisions.

Frequently Asked Questions About ADUs in Los Angeles

How much does it cost to build an ADU in Los Angeles?

ADU costs in Los Angeles typically range from $80,000 for garage conversions to $350,000+ for larger detached units. Factors affecting cost include size, finishes, site conditions, and utility connections. Based on current market rates, a typical garage conversion jadu like this project costs approximately $120,000-$300,000.

How long does it take to get ADU permits in Los Angeles?

Los Angeles currently processes ADU permits in approximately 8-16 weeks. California law requires cities to approve or deny ADU applications within 60 days. Many jurisdictions, including Los Angeles, offer expedited processing for standard designs and pre-approved plans.

What is the rental income potential for an ADU in Los Angeles?

Based on current market rates in Southern California, a 1-bedroom ADU can rent for approximately $2,400/month, while 2-bedroom units command around $3,100/month. This translates to an estimated annual return of 4.2% on your investment.

Do I need to live on the property to build an ADU in Los Angeles?

California law prohibits cities from requiring owner-occupancy for ADU permits. You can build an ADU on your property regardless of whether you live there. However, some financing options may have occupancy requirements, and short-term rental rules vary by location.

Can I Airbnb my ADU in Los Angeles?

Short-term rental regulations vary by city and neighborhood. Los Angeles has specific rules governing vacation rentals that may require registration, permits, or occupancy requirements. We recommend consulting local regulations and our team can help you understand the options for your specific property.

ADU Services in Nearby Southern California Areas

GatherADU provides comprehensive ADU design and construction services throughout Southern California. We serve homeowners in Los Angeles and surrounding communities with the same expert guidance and quality craftsmanship demonstrated in this project.

Silver Lake Echo Park Highland Park Mar Vista Culver City

Whether you're considering a garage conversion jadu like this project or exploring other ADU options, our team understands the unique characteristics and regulations of each neighborhood in the Southern California area. Contact us to discuss your specific property and goals.

Helpful ADU Resources

Explore our comprehensive ADU resources to learn more about the process, costs, regulations, and design options available to you.

Ready to Build Your Dream ADU?

Let's discuss how we can help you create additional living space, generate rental income, or provide housing for loved ones.