Detached ADU

262 sq ft Detached Tiny House ADU in Kent, WA

Kent, WA, California

Project Type Detached ADU
Location Kent, WA
Status Completed

Project Overview

An adorable 262 sq ft detached tiny house ADU in Kent, Washington, designed as a guest house or rental unit. This compact backyard home features a charming gabled roofline with a covered front porch, an open-concept living area with office nook, a full bathroom, a utility/laundry room, and a mini-split heat pump for year-round comfort. Its cute, cottage-like shape makes it a standout in any backyard.

Project Details

Project Overview

This 262 sq ft detached tiny house ADU in Kent, Washington proves that great things come in small packages. Designed as a guest house or rental unit, this charming backyard cottage packs a living room, office nook, full bathroom, utility room, and linen storage into an incredibly efficient footprint. The distinctive dual-gable roofline and covered front porch give it a cottage-like character that enhances any backyard.

Layout & Design

The floor plan is organized into clearly defined zones despite its compact size:

  • Living Area: An open-concept living space with open-to-roof structure throughout, creating a sense of spaciousness despite the small footprint.
  • Office Nook: A dedicated workspace area tucked into the layout, perfect for remote work or a reading corner.
  • Full Bathroom: A complete bathroom with shower, toilet, and vanity.
  • Utility Room: A separate utility space with washer/dryer hookups, water heater, and linen closet storage.
  • Covered Front Porch: A welcoming entry porch sheltered by the extended roofline.

Architectural Character

What makes this tiny house ADU special is its charming shape. The dual-gable roof design with stucco exterior gives it a cottage-like appearance that feels like a miniature home rather than an accessory structure. The covered porch entry, varied window sizes, and thoughtful proportions create curb appeal that complements the main house.

3D Rendering

3D rendering of the 262 sq ft detached tiny house ADU showing charming dual-gable roofline and covered porch
3D rendering showing the cottage-like character with dual-gable roof and covered entry porch

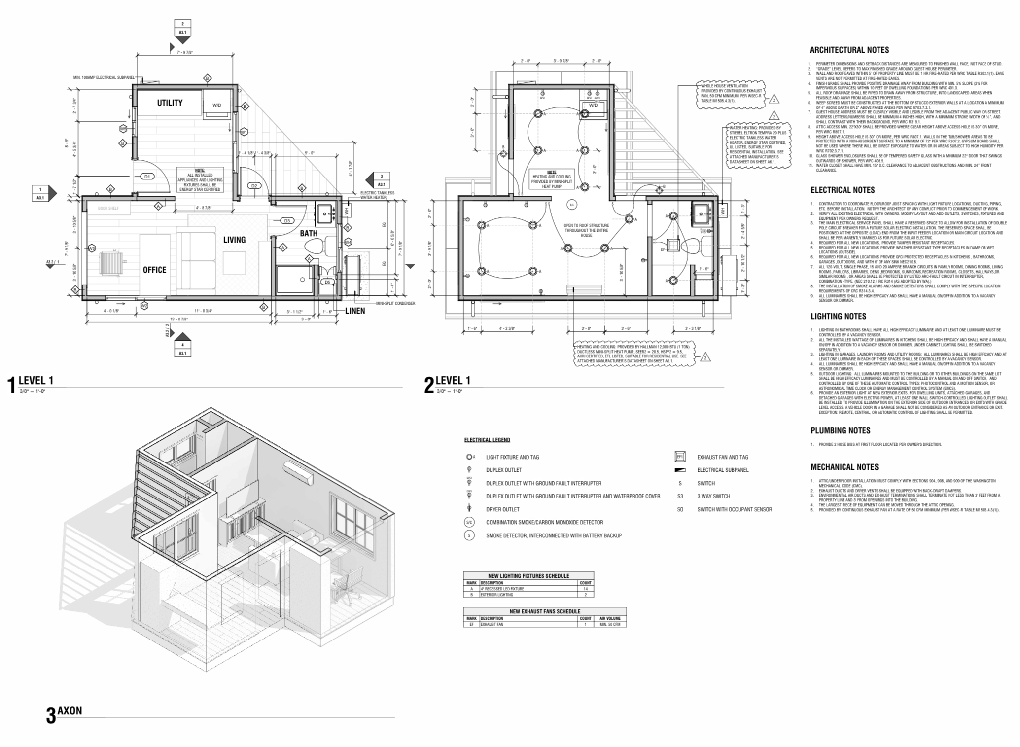
Floor Plan & Construction Details

Floor plan and axonometric view of 262 sq ft tiny house ADU showing living area, office, bathroom, and utility room
Detailed floor plan with electrical layout, axonometric view, and construction notes

Elevations

East, north, west, and south elevation drawings of the Kent WA tiny house ADU with door and window schedules
All four exterior elevations with door and window type details

3D Views

Four 3D perspective views of the 262 sq ft tiny house ADU from different angles
3D views from all four angles showing the charming cottage proportions

Building Specifications

  • Size: 262 sq ft
  • Type: Detached ADU / Guest House
  • Layout: Open-concept living + office, bathroom, utility room
  • Bedrooms: Studio / flex space
  • Bathrooms: 1 full bath
  • HVAC: Ductless mini-split heat pump
  • Exterior: Stucco finish
  • Roof: Dual-gable with covered front porch
  • Location: Kent, WA
  • Laundry: In-unit washer/dryer in utility room
  • Ceiling: Open to roof structure throughout

Our Approach

Discovery & Planning

We analyzed the property, zoning regulations, and homeowner goals to create a customized feasibility plan.

Design

Our designers created custom floor plans maximizing space while respecting the budget and aesthetic preferences.

Permitting

We navigated city requirements and handled all paperwork, securing permits efficiently.

Construction

Our licensed contractors brought the ADU to life with premium materials and meticulous attention to detail.

Understanding Detached ADUs

A standalone accessory dwelling unit built separately from the main home, offering maximum privacy and flexibility. This project in Kent exemplifies the benefits and possibilities of this ADU type, demonstrating how homeowners can maximize their property's potential while creating valuable living space.

Typical Size
400-1,200 sq ft
Cost Range
$150,000-$350,000
Timeline
6-12 months

Key Benefits

Complete privacy from main home
Flexible design options
Higher rental income potential
Can be built in backyard
Independent utilities available

Ideal For

Long-term rentals Multi-generational housing Home offices Guest suites

Kent ADU Market Insights

Kent is located in Southern California and represents one of the most dynamic ADU markets in the area. With a population of 3.9 million and median home prices of $950,000, the demand for accessory dwelling units continues to grow as homeowners seek to maximize their property value and generate additional income.

Market Metric Value
Population 3.9 million
Median Home Price $950,000
Average 1-Bed Rent $2,400/month
Average 2-Bed Rent $3,100/month
Permit Timeline 8-16 weeks
ADU Demand Level Very High
Estimated Rental Yield 4.2%

Why Build an ADU in Kent?

Largest ADU market in California
SB 1211 allows up to 8 ADUs on multifamily lots
No parking requirements within 1/2 mile of transit
Pre-approved ADU plans available

ADU Investment Potential in Kent

Building an ADU in Kent represents a significant investment opportunity. Based on current market conditions and rental rates in the Southern California area, homeowners can expect strong returns on their ADU investment. The combination of high rental demand, favorable regulations, and property value appreciation makes this an attractive option for long-term wealth building.

Monthly Income
$2,400
Average 1-Bed
Rental Yield
4.2%
Annual Return
Property Value
+15-25%
Average Increase

Investment Note: ADUs in Kent typically pay for themselves within 8-12 years through rental income alone, while also providing immediate property value appreciation. Many homeowners also benefit from tax advantages and depreciation deductions.

Typical ADU Building Timeline in Kent

Understanding the ADU construction timeline helps homeowners plan effectively. Here's what to expect when building a detached adu in the Southern California area.

Feasibility & Design

2-4 Weeks

Site analysis, zoning verification, initial design concepts, and cost estimation. We assess your property's ADU potential and create preliminary plans.

Architectural Plans

3-6 Weeks

Detailed architectural drawings, structural engineering, Title 24 energy compliance, and complete permit-ready documentation.

Permitting

8-16 weeks

Permit application submission, plan check review, and approval process. Kent offers streamlined ministerial review for qualifying ADU projects.

Construction

6-12 months

Foundation, framing, MEP rough-in, insulation, drywall, finishes, and final inspections. Our licensed contractors manage every phase with quality craftsmanship.

Final Inspection & Move-In

1-2 Weeks

Certificate of occupancy, utility connections, final walkthrough, and handover. Your ADU is now ready for occupancy or rental.

Ready to Start Your ADU Project in Kent?

Get expert guidance on designing and building your own accessory dwelling unit. Our team specializes in Southern California ADU projects.

ADU Regulations in Kent

Understanding local ADU regulations is crucial for a successful project. Kent follows California state ADU laws while implementing local standards. Here are the key regulations that applied to this project and similar builds in the area.

Size Limits

  • Detached ADU: Up to 1,200 sq ft
  • Attached ADU: 50% of primary home
  • JADU: Up to 500 sq ft
  • No minimum size requirement

Setbacks

  • Rear setback: 4 feet minimum
  • Side setback: 4 feet minimum
  • No front setback for JADUs
  • Conversions: Existing setbacks apply

Height Limits

  • Detached: 16-18 feet typical
  • 2-story ADUs: Up to 25 feet
  • Must not exceed primary dwelling
  • Local variations may apply

Parking

  • No parking within 1/2 mile of transit
  • Garage conversions: No replacement
  • JADUs: No parking required
  • Tandem parking allowed

Pro Tip: California's ADU laws are updated regularly. Our team stays current on all local and state regulations in Kent to ensure your project meets current requirements and takes advantage of all available streamlining provisions.

Frequently Asked Questions About ADUs in Kent

How much does it cost to build an ADU in Kent?

ADU costs in Kent typically range from $80,000 for garage conversions to $350,000+ for larger detached units. Factors affecting cost include size, finishes, site conditions, and utility connections. Based on current market rates, a typical detached adu like this project costs approximately $150,000-$350,000.

How long does it take to get ADU permits in Kent?

Kent currently processes ADU permits in approximately 8-16 weeks. California law requires cities to approve or deny ADU applications within 60 days. Many jurisdictions, including Kent, offer expedited processing for standard designs and pre-approved plans.

What is the rental income potential for an ADU in Kent?

Based on current market rates in Southern California, a 1-bedroom ADU can rent for approximately $2,400/month, while 2-bedroom units command around $3,100/month. This translates to an estimated annual return of 4.2% on your investment.

Do I need to live on the property to build an ADU in Kent?

California law prohibits cities from requiring owner-occupancy for ADU permits. You can build an ADU on your property regardless of whether you live there. However, some financing options may have occupancy requirements, and short-term rental rules vary by location.

Can I Airbnb my ADU in Kent?

Short-term rental regulations vary by city and neighborhood. Kent has specific rules governing vacation rentals that may require registration, permits, or occupancy requirements. We recommend consulting local regulations and our team can help you understand the options for your specific property.

ADU Services in Nearby Southern California Areas

GatherADU provides comprehensive ADU design and construction services throughout Southern California. We serve homeowners in Kent and surrounding communities with the same expert guidance and quality craftsmanship demonstrated in this project.

Silver Lake Echo Park Highland Park Mar Vista Culver City

Whether you're considering a detached adu like this project or exploring other ADU options, our team understands the unique characteristics and regulations of each neighborhood in the Southern California area. Contact us to discuss your specific property and goals.

Helpful ADU Resources

Explore our comprehensive ADU resources to learn more about the process, costs, regulations, and design options available to you.

Ready to Build Your Dream ADU?

Let's discuss how we can help you create additional living space, generate rental income, or provide housing for loved ones.